Сортировать:
Найдено: 14 товаров:
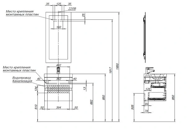
Код товара:
625624
45 670 ₽/шт
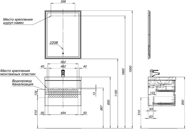
Код товара:
625625
44 437 ₽/шт
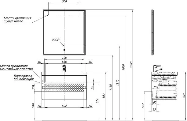
Код товара:
625627
51 667 ₽/шт
Код товара:
625628
50 614 ₽/шт































































































































































































